Sliding Ball Check Valve
Technical Specifications
Item model number: HQ41X
Nominal diameter: DN40-DN350
Nominal pressure: PN1.6MPa-2.5MPa
Applicable medium: water
Applicable temperature: 0℃-80℃
Body material: ductile iron, cast steel, stainless steel
Manufacturing standard: GB/T 12238-89
Connection standard: GB/T 17241
Sales Hotline:
Product Details
Product overview
The slideway ball check valve uses a rubber-wrapped ball as the valve disc. Under the action of the medium, it can roll up and down on the integral slideway of the valve body to open or close the valve, with good sealing performance and no noise reduction. water hammer. The valve body adopts a full flow channel, with large flow and low resistance. The head loss is 50% smaller than that of the swing type. It can be installed horizontally or vertically. It can be used for cold water, hot water, industrial and domestic sewage pipe networks, and is more suitable for submersible sewage pumps. . It can be installed at the water outlet of the pump to prevent backflow and water hammer damage to the pump.
Product features
The slideway ball check valve uses a rubber-wrapped ball as the valve disc. Under the action of the medium, it can roll up and down on the integral slideway of the valve body to open or close the valve, with good sealing performance and no noise reduction. water hammer. The valve body adopts a full flow channel, with large flow and low resistance. The head loss is 50% smaller than that of the swing type. It can be installed horizontally or vertically. It can be used for cold water, hot water, industrial and domestic sewage pipe networks, and is more suitable for submersible sewage pumps.
The main technical parameters
|
Model |
Nominal pressure MPa |
Shell test pressure MPa |
Sealing test pressure MPa |
Body material |
|
HQ41X-10 |
1.0 |
1.5 |
1.1 |
H200 |
|
HQ41X-10 |
1.6 |
2.4 |
1.76 |
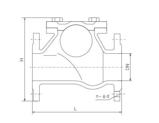
Main connection size
|
DN |
50 |
65 |
80 |
100 |
125 |
150 |
200 |
250 |
300 |
350 |
|
L |
180 |
200 |
260 |
300 |
350 |
400 |
500 |
600 |
700 |
800 |
|
H |
185 |
210 |
245 |
280 |
335 |
400 |
495 |
600 |
715 |
820 |

Check the mobile website