自力式差(微)压调节阀
技术参数
产品型号:ZZVP、ZZCP
公称通径:DN20~100mm
压力范围:PN0.1~1.0MPa
使用温度:≤ 80℃
制造标准:GB/T4213-1992
法兰标准:GB/T9113-2000
阀门材质:WCB、CF8
密封填料:V型聚四氟乙烯(F4)、柔性石墨
控制精度:±10(%)
泄露等级:ANSI B16.104-1976(IV级)
销售热线:
产品详情
产品概述
自力式差(微)压调节阀是一种无需外来能源的节能型产品,利用工艺管道中介质的压力变化与信号进行比较,使被调节介质的力与执行机构的输出力平衡,以达到稳定压力、差压值。 在运行中可任意对设定值进行调整等特点。因而适用于各种工业炉燃烧统燃料气体、石油在制品或油库贮罐保护气体与热处理保护气体的微压自动调节等场合。
产品特点
1、微压调节阀无需外加能源,利用工艺管道中介质的压力来自行调节,既方便又节约能源;
2、压力分段范围细且互相交叉,调节精度高,压力设定值在运行期间可连续设定;
3、对阀后压力调节,阀前压力与阀后压力之间比为10:1~10:8;
4、橡胶膜片式检测,执行机构检测精度高、动作灵敏;
5、采用压力平衡机构,使调节阀反应灵敏,控制精确。
主要技术参数和性能指标
| 公称通径DN(mm) | 20 | 25 | 32 | 40 | 50 | 65 | 80 | 100 | |
| 额定流量(KV) | 单座(P) | 8 | 11 | 20 | 32 | 50 | 80 | 100 | 160 |
| 双座(N) | ─ | ─ | ─ | ─ | 50 | 83 | ─ | ─ | |
| 额定行程(mm) | 6 | 8 | 10 | 15 | 20 | ||||
| 调节精度(%) | ±10 | ||||||||
| 公称压力PN(MPa) | ZZC | 0.10、1.0 | |||||||
| ZZV | 0.10 | ||||||||
| 介质温度(℃) | ≤80 | ||||||||
| 允许泄漏量(L/h) | 单座(P) | 10-4×阀额定容量 | |||||||
| 双座(N) | 10-3×阀额定容量 | ||||||||
| 压力调节范围(Kpa) | 0.5~5.5、5~10、9~14、13~19、18~24、22~28、26~33、31~38、36~44、41~51、49~58、56~66、64~78、76~90、76~90 | ||||||||
主要零件材质
| 材料代号 | C(WCB) | P(304) | R(316) | |
|
主要 零件 |
阀体、阀盖 | WCB(ZG230-450) | ZG1Cr18Ni9Ti(304) | ZG1Cr18Ni12Mo2Ti(316) |
| 阀芯、阀座 | 1Cr18Ni9Ti(304) | 1Cr18Ni9Ti(304) | 1Cr18Ni12Mo2Ti(316) | |
| 阀杆 | 2Cr13 | 1Cr18Ni9Ti | 1Cr18Ni12Mo2Ti | |
| 填料 | V型聚四氟乙烯(F4)、柔性石墨、 | |||
| 垫片 | 增强聚四氟乙烯(F4) 、不锈钢垫片、金属石墨缠绕垫片 | |||
| 上下膜盖 | A3钢板冲压 | |||
| 波纹膜片 | 丁腈橡胶、耐油橡胶、氟橡胶 | |||
| 弹簧 | 60Si2Mn | |||
| 波纹管 | 1Cr18Ni9Ti | |||
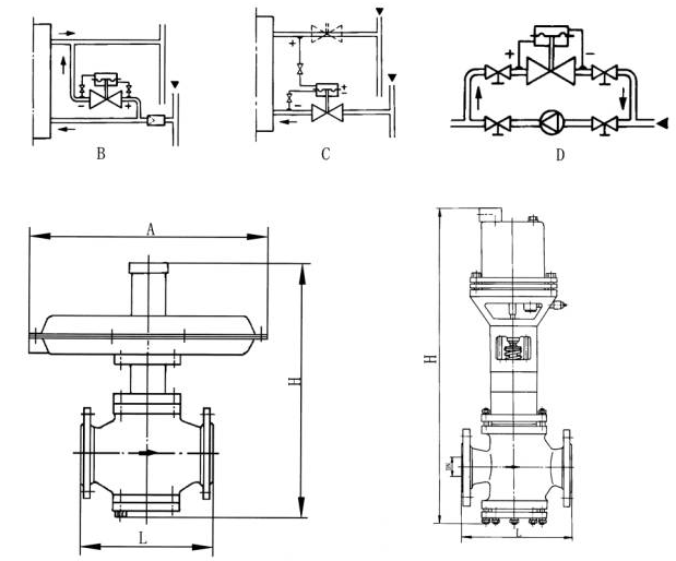
主要外形尺寸及重量
|
DN |
20 |
25 |
32 |
40 |
50 |
65 |
80 |
100 |
|
|
A |
308 |
394 |
308 |
394 |
308 |
394 |
394 |
394 |
|
|
H |
ZZCP/ZZVP |
376 |
465 |
365 |
445 |
445 |
490 |
490 |
510 |
|
ZZCN |
536 |
536 |
|
|
|
|
|
|
|
|
L |
ZZCP/ZZVP |
150 |
160 |
180 |
200 |
230 |
290 |
310 |
350 |
|
ZZCN |
222 |
222 |
|
|
|
|
|
|
|
|
重量 G(Kg) |
12 |
13 |
15 |
17 |
20 |
28 |
38 |
43 |
|
|
导压管螺纹接头 |
M16X1.5 |
||||||||

查看手机网站