平行式双闸板闸阀
产品详情
产品概述
我公司开发的平行式双闸板闸阀是消化吸收国外先进技术、自行设计并研制成功的产品,现已发展有手动、锥齿轮传动、气动、电动等不同的传动方式。
本产品动作可靠,适用于气、液介质输送管路的紧急切断或排放,可用在高温、高压、防爆、防腐蚀等环境条件下安全可靠作业。已广泛应用于石油、化工、电力、冶金、轻纺、油库及**等部门。经过多年的生产研发,在结构性能上不断改进提高,新技术不断的融入,使产品质量、使用性能不断提高,市场日趋扩大,并以良好服务取得了用户信任和好评。
主要性能参数
| 气动阀门气 缸单程参考 耗气量(m3 ) | DN(mm) | ≤50 | 65~80 | 100 | 125 | 150 | 200 | 250 | 300 | ||
| 耗气量 | 0.003 | 0.008 | 0.012 | 0.023 | 0.027 | 0.078 | 0.096 | 0.165 | |||
| DN(mm) | 350 | 400 | 450 | 500 | 600 | 700 | 800 | 900 | |||
| 耗气量 | 0.185 | 0.261 | 0.292 | 0.505 | 0.869 | 1.051 | 1.568 | 1.809 | |||
| 适用介质 | 水、蒸汽、油品、气体等 | ||||||||||
| 适用介质温度(℃) | 低温:-46~345、中温:-29~425、高温:450~600 | ||||||||||
| 气缸气源压力(MPa) | 0.3~0.7 | ||||||||||
| 阀门开关 全行程切 断时间 (s) | DN15~32(mm) | <2 | |||||||||
| DN40~100(mm) | <4 | ||||||||||
| DN125~200(mm) | <8 | ||||||||||
| DN250~400(mm) | <16 | ||||||||||
| DN450~600(mm) | <26 | ||||||||||
| DN700~900(mm) | <40 | ||||||||||
| 阀门泄漏等级 | 按照GB/T 4213、FCI 70-2(ASME B16.104)标准,泄漏等级为V级 | ||||||||||
| 气源接口尺寸(mm) | ≤DN100 | DN150~DN200 | DN250~DN400 | ≥DN100 | |||||||
| NPT1/4-Φ8 | NPT1/4~NPT3/8-Φ8 | NPT3/8~NPT1/2-Φ10/Φ12 | NPT1/2-Φ16 | ||||||||
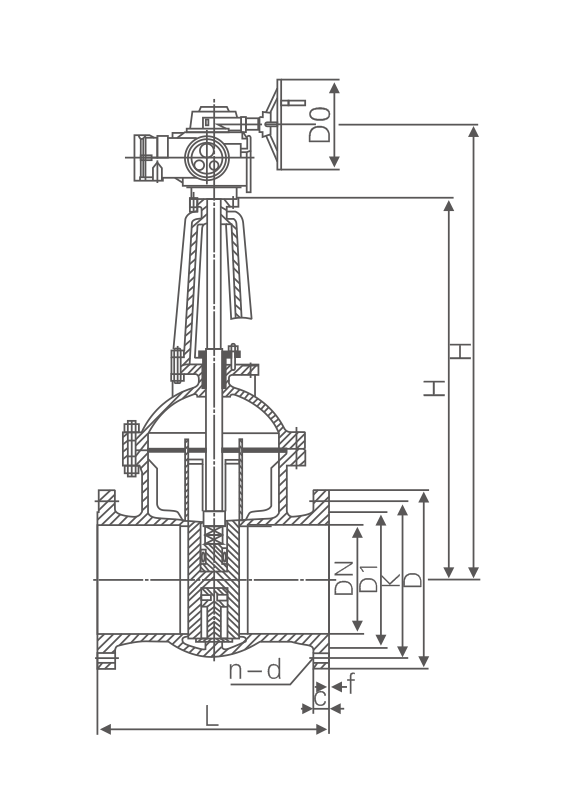
外形连接尺寸
| 公称 压力 PN (MPa) | 公称 通径 DN | 外形尺寸 | 连接尺寸 | 密封面(RF) |
参考 重量 (kg) |
|||||||||
| L基本系列代号 | H | H1 | L1 | D0 | D | K | n-d | C | D1 | f | ||||
| 3(短) | 1/15(长) | |||||||||||||
| 1.6 | 15 | 108 | 130 | 472 | 380 | 185 | 250 | 95 | 65 | 4-14 | 16 | 45 | 2 | 27 |
| 20 | 117 | 150 | 485 | 390 | 185 | 250 | 105 | 75 | 4-14 | 18 | 58 | 2 | 30 | |
| 25 | 127 | 160 | 490 | 400 | 185 | 250 | 115 | 85 | 4-14 | 18 | 68 | 2 | 32 | |
| 32 | 140 | 180 | 530 | 414 | 185 | 250 | 140 | 100 | 4-18 | 18 | 78 | 2 | 35 | |
| 40 | 165 | 240 | 600 | 430 | 185 | 250 | 150 | 110 | 4-18 | 18 | 88 | 2 | 42 | |
| 50 | 178 | 250 | 729 | 488 | 185 | 250 | 165 | 125 | 4-18 | 18 | 102 | 2 | 57 | |
| 65 | 190 | 270 | 802 | 550 | 185 | 250 | 185 | 145 | 8-18 | 18 | 122 | 2 | 68 | |
| 80 | 203 | 280 | 891 | 604 | 185 | 250 | 200 | 160 | 8-18 | 20 | 138 | 2 | 80 | |
| 100 | 229 | 300 | 1051 | 710 | 185 | 250 | 220 | 180 | 8-18 | 20 | 158 | 2 | 100 | |
| 125 | 254 | 325 | 1283 | 740 | 185 | 250 | 250 | 210 | 8-18 | 22 | 188 | 2 | 125 | |
| 150 | 267 | 350 | 1385 | 925 | 185 | 250 | 285 | 240 | 8-22 | 22 | 212 | 2 | 155 | |
| 200 | 292 | 400 | 1700 | 1119 | 258 | 350 | 340 | 295 | 12-22 | 24 | 268 | 2 | 265 | |
| 250 | 330 | 450 | 1904 | 1226 | 258 | 350 | 405 | 355 | 12-26 | 26 | 320 | 2 | 350 | |
| 300 | 356 | 500 | 2245 | 1438 | 258 | 350 | 460 | 410 | 12-26 | 28 | 378 | 2 | 470 | |
| 350 | 381 | 550 | 2620 | 1640 | 290 | 400 | 520 | 470 | 16-26 | 30 | 428 | 2 | 640 | |
| 400 | 406 | 600 | 2715 | 1400* | 290 | 400 | 580 | 525 | 16-30 | 32 | 490 | 2 | 840 | |
| 450 | 432 | 650 | 2840 | 1550* | 445 | 650 | 640 | 585 | 20-30 | 40 | 550 | 2 | 1200 | |
| 500 | 457 | 700 | 3220 | 1700* | 445 | 650 | 715 | 650 | 20-33 | 44 | 610 | 2 | 1380 | |
| 600 | 508 | 800 | 3750 | 1900* | 480 | 650 | 840 | 770 | 20-36 | 54 | 725 | 2 | 1620 | |
| 700 | 610 | 900 | 4365 | 2280* | 480 | 650 | 910 | 840 | 24-36 | 42 | 795 | 2 | 2780 | |
| 800 | 711 | 1000 | 4890 | 2504* | 525 | 900 | 1025 | 950 | 24-39 | 42 | 900 | 2 | 4215 | |
| 900 | 711 | 1100 | 5305 | 2725* | 530 | 900 | 1125 | 1050 | 28-39 | 44 | 1000 | 2 | 4850 | |

查看手机网站