衬氟球阀
技术参数
产品型号:Q41F46/Q341F46
公称通径:DN50~DN600mm
公称压力:PN1.0 MPa ~1.6MPa
适用温度:-29℃~150℃
设计制造:GB/T12237-1989
法兰尺寸:GB/T9112~9131
结构长度:GB/T12221-1989
检验试验:JB/T 9092、API 598
适用介质:浓酸、硫酸、王水
销售热线:
产品详情
产品结构特征
衬氟球阀是用带圆形通孔的球体作启闭件,球体随阀杆绕阀体中心线旋转以实现阀门开启和关闭。采用特殊的模压工艺,使密封面致密良好,加之V型PTFE填料组合使阀门达到零泄漏;球体与阀杆铸为一-体,杜绝了由于压力变化引起阀杆冲出承压件内的可能性,根本保证使用中的安全性;采用氟塑料衬里层的球阀,具有极高的化学稳定性,适用于任何强腐蚀性化学介质;采用全通浮动球阀结构,在整个压力范围内进行元泄漏关闭,便便于管路系统在通球扫线和管路维护。
衬氟球阀为控制各种强腐蚀性介质的启闭而进行的专业设计,广泛使用于石油,化工,染化,农药,制酸制碱等行业,是目前防腐阀门理想的选择。
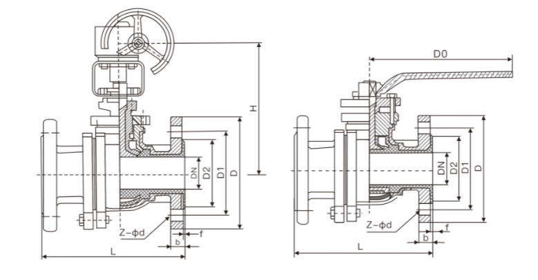
主要外形连接尺寸(PN10)
|
DN(mm) |
NPS(inch) |
L |
D |
D1 |
D2 |
f |
b |
Z- φd |
D0 |
H |
WT(kg) |
| 15 | 1/ 2 | 140 | 95 | 65 | 45 | 2 | 14 | 4-14 | 120 | 80 | 3 |
| 20 | 3 /4 | 140 | 105 | 75 | 55 | 2 | 16 | 4-14 | 140 | 90 | 3.9 |
| 25 | 1 | 150 | 115 | 85 | 65 | 2 | 16 | 4-14 | 160 | 100 | 4.5 |
| 32 | 1-1 /4 | 165 | 135 | 100 | 78 | 2 | 18 | 4-18 | 160 | 110 | 6.5 |
| 40 | 1-1/2 | 180 | 145 | 110 | 85 | 3 | 18 | 4-18 | 200 | 120 | 8 |
| 50 | 2 | 200 | 160 | 125 | 100 | 3 | 20 | 4-18 | 250 | 135 | 11 |
| 65 | 2-1 /2 | 220 | 180 | 145 | 120 | 3 | 20 | 4-18 | 300 | 145 | 15.5 |
| 80 | 3 | 250 | 195 | 160 | 135 | 3 | 22 | 4/8-18 | 350 | 180 | 19 |
| 100 | 4 | 280 | 215 | 180 | 155 | 3 | 22 | 8-18 | 240 | 195 | 26 |
| 125 | 5 | 320 | 245 | 210 | 185 | 3 | 24 | 8-18 | 500 | 210 | 44 |
| 150 | 6 | 360 | 280 | 240 | 210 | 3 | 24 | 8-23 | 200* | 450 | 70 |
| 200 | 8 | 457 | 335 | 295 | 265 | 3 | 26 | 8-23 | 240* | 490 | 110 |
| 250 | 10 | 533 | 390 | 350 | 320 | 3 | 28 | 12-23 | 240* | 550 | 220 |
| 300 | 12 | 610 | 440 | 400 | 368 | 4 | 28 | 12-23 | 320* | 600 | 280 |
| 350 | 14 | 686 | 500 | 460 | 428 | 4 | 30 | 16-23 | 320* | 675 | 410 |

查看手机网站