滑道滚球式止回阀
技术参数
产品型号:HQ41X
公称通径:DN40-DN350
公称压力:PN1.6MPa-2.5MPa
适用介质:水
适用温度:0℃-80℃
阀体材质:球铁、铸钢、不锈钢
制造标准:GB/T 12238-89
连接标准:GB/T 17241
销售热线:
产品详情
产品概述
滑道滚球式止回阀采用橡胶包裹球为阀瓣,在介质的作用下,可在阀体的整体式滑道上做上下滚动,从而打开或关闭阀门,密封性能好,消声关闭不产生水锤。阀体采用全流道,流量大,阻力小,水头损失比旋启式小50%,在水平或垂直安装均可,可用于冷水、热水、工业及生活污水管网,更适合潜水排污泵。可安装于水泵出水口处,以防止倒流及水锤对泵的损害。
主要技术参数
|
型号 |
公称压力MPa |
壳体试验压力MPa |
密封试验压力MPa |
阀体、阀体材料 |
|
HQ41X-10 |
1.0 |
1.5 |
1.1 |
H200 |
|
HQ41X-10 |
1.6 |
2.4 |
1.76 |
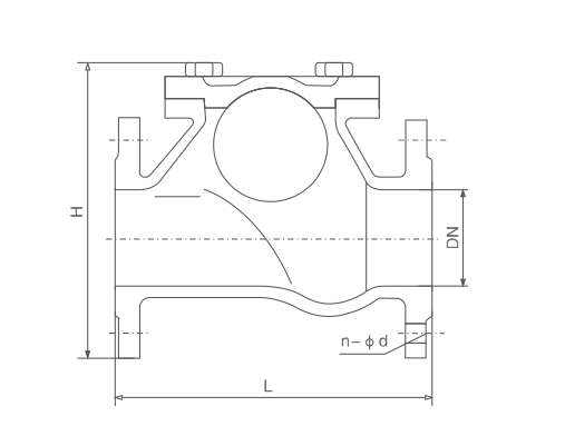
主要连接尺寸
|
DN |
50 |
65 |
80 |
100 |
125 |
150 |
200 |
250 |
300 |
350 |
|
L |
180 |
200 |
260 |
300 |
350 |
400 |
500 |
600 |
700 |
800 |
|
H |
185 |
210 |
245 |
280 |
335 |
400 |
495 |
600 |
715 |
820 |

查看手机网站